VIVIENDAS PARA ESTUDIANTES EN EL CENTRO HISTÓRICO

Alojamientos para estudiantes en c/Puentezuelas y c/Gracia. Granada.
AUTORES: Juan Antonio SERRANO GARCÍA
TIPOLOGÍA: Viviendas para estudiantes
AÑO: Febrero 2004

MEMORIA RESUMEN:
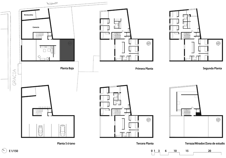
En el centro histórico de Granada se propone una residencia para estudiantes en un solar junto a la Iglesia de la Magdalena. La propuesta plantea dos estrategias diferenciadas. Una responde al contacto con la calle Puentezuelas y las preexistencias del lugar cargado de historia y la otra plantea la relación entre los estudiantes y sus actividades. Surgen dos volúmenes conectados, uno enfrentado a la iglesia y otro volcado a dos patios de distinto carácter. Un patio mantiene el contacto con la calle siendo más público y otro interior es utilizado para la lectura y el estudio. La intención del proyecto es conseguir unas vivendas minimas para dormir y comer, agrupando actividades como el ocio y el estudio en espacios comunes para todas las viviendas. La relación con las vistas lejanas o cercanas condiciona el tamaño de los huecos y la disposición de los espacios exteriores.