CASA CON LÍMITES A NEGOCIAR

Vivienda para una familia. Plaza Bib-Rambla. Granada.
AUTORES: Juan Antonio SERRANO GARCÍA y Paloma BAQUERO MASATS
TIPOLOGÍA: Rehabilitación y acondicionamiento de una vivienda para una nueva familia.
AÑO: Febrero 2O14

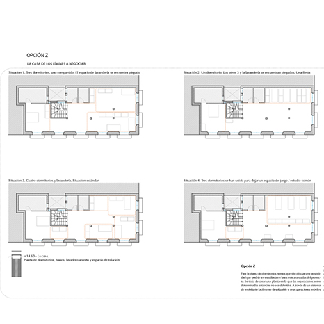
MEMORIA RESUMEN:
‘...llena de cambiantes, de vendedores de alcarrazas, de cacharros de barro, de pucheros, de sandías, de quincallas, de romances, de cuchillos, de navajas, de rosarios y otras cosas al aire libre…’ ¹

La plaza Bib-Rambla no siempre fué como la conocemos en la actualidad. En el mismo lugar en que se ubica el edificio a intervenir, antes se encontraba una de las murallas que partían de la Alhambra y que protegían la ciudad. Cuando desapareció la necesidad defensiva se abrió el arco de las cucharas, que da nombre a la actual calle. El edificio que compartía la esquina de dicha calle con la plaza se llamaba ‘la casa de los miradores’ y desapareció en un incendio a finales del siglo XIX. Todos estos elementos que dieron carácter a esta parte de la ciudad no hace tanto tiempo ya no existen, pero lo más importante permanece.

17’87 metros por encima de la plaza, llena de vida y actividad, existe un lugar que pertenece a otro mundo. Un lugar único que pone en relación la Catedral, la Alhambra, el pico del Veleta o la Iglesia de la Magdalena a través de un paisaje de cubiertas cambiante a lo largo del día y las estaciones.

Un mirador.

1. Teófilo Gautier. Viajero en Granada 1840